7639 Winchester Ave, INWOOD, WV

$359,900

Previous Next

6,000

Square feet

0.69

Acres

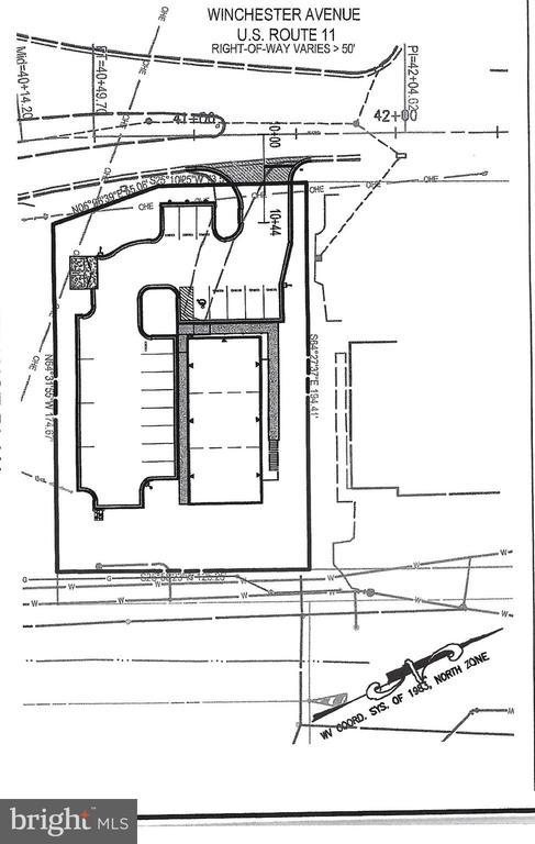
About 7639 Winchester Ave

Site plan approved for a 6000 sq building to include (3) 1000 sq ft flex office space on the main level, (3) 1000 sq ft apartments on the second level. Site plans, highway permits and all approvals convey. Save the wait time, ready to turn dirt. Situated in the heart of all the growth in Inwood and adjacent to the New Food Lion. Great opportunity!

Features of 7639 Winchester Ave

MLS® # WVBE2035426
Price $359,900
Bathrooms 0.00
Square Footage 6,000
Acres 0.69
Type Commercial Sale
Sub-Type Five Or More Units
Status Active

Community Information

Address 7639 Winchester Ave
City INWOOD
County BERKELEY-WV
State WV
Municipality Mill Creek District
Zip Code 25428

Amenities

Is Waterfront No

Interior

Heating None
Cooling None
Has Basement No
Fireplace No

School Information

District BERKELEY COUNTY SCHOOLS

Additional Information

Date Listed December 11th, 2024
Days on Market 311
Zoning 101
Foreclosure No
Short Sale No
RE / Bank Owned No

Listing Details

OfficeKeller Williams Realty Advantage
Contact Info3049014886

Listing Map

Request a Showing

Provide a valid email address.
When would you like to view this property?